NAVESALIA Naves en Alquiler en San Agustin de Guadalix y oficinas en Alquiler y Venta en Madrid capital english +34 916 508 937


 
Solicitar más información
   
Nombre:
Apellidos:
Email:
Telefono:
Comentario
 
NAVES:

 L1
 L2
 L3
 L4
 L5
 L6
 LL7
 LL8
 DL9
 DL10
 C1   C2   C3   C4
 Naves C
 H21
 D4-D5

OFICINAS:

 C/ Gral. Martinez Campos, 41
 C/ Maria de Molina, 37:
   1a planta
   2a planta
   8a planta
 C/ Bolivia, 13
 C/ Padre Xifre, 5

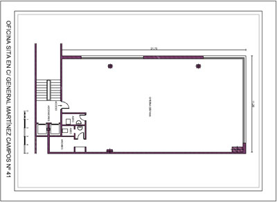
Oficina en C/ General Martínez Campos, 41 - 7ª planta

Oficina diáfana de 245 m2 netos, muy luminosa exterior en su totalidad, falso techos, suelo técnico, totalmente remodelada y con instalación de aire acondicionado frío calor.



- Edificio exclusivo de oficinas.


- Planta 7º del edificio., muy luminosa.

- Conserje de día.


- Totalmente remodelada en su interior.


- Falsos techos con luminarias.

- Suelos técnicos con instalaciones para telefonía y datos.


- Aparcamiento público en frente. Buenas conexiones de metro y autobús.


- Una plaza de garaje en el edificio.

Superficie:

  

245 m2

no disponible


Descargar planos en PDF
imprimir ficha
Descargar ficha en PDF
 

Plano de situacion (en Madrid)

 
© NAVESALIA S.L. CIF: B-82685405 Paseo de la Castellana, 54 - Planta 2. 28046 - MADRID. Todos los derechos reservados.