NAVESALIA Naves en Alquiler en San Agustin de Guadalix y oficinas en Alquiler y Venta en Madrid capital english +34 916 508 937


 
Solicitar más información
   
Nombre:
Apellidos:
Email:
Telefono:
Comentario
 
NAVES:

 L1
 L2
 L3
 L4
 L5
 L6
 LL7
 LL8
 DL9
 DL10
 C1   C2   C3   C4
 Naves C
 H21
 D4-D5

OFICINAS:

 C/ Gral. Martinez Campos, 41
 C/ Maria de Molina, 37:
   1a planta
   2a planta
   8a planta
 C/ Bolivia, 13
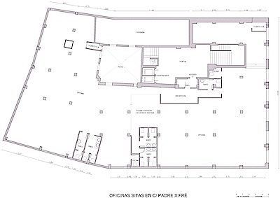
 C/ Padre Xifre, 5

Oficina total de 639 m2 netos (820 m2 construidos) en zona Avda. América, frente a Torres Blancas. También se puede alquilar media oficina con las siguientes condiciones:

Opción 1: Descargar plano en PDF
Oficina Exterior: 316 m2 a 8,56 €/m2 = 3.097 € (gastos incl.)
Oficina Interior: 323 m2 a 6,32 €/m2 = 2.444 € (gastos incl.)

Opción 2: Descargar plano en PDF
Oficina Exterior: 377 m2 a 8,56 €/m2 = 4.066 € (gastos incl.)
Oficina Interior: 263 m2 a 6,32 €/m2 = 2.511 € (gastos incl.)

En la C/ Padre Xifré, 5 de Madrid se ubica este local oficina en entreplanta de un edificio mixto en la zona de Avda de America junto a Torres Blancas y los hoteles Abba y Puerta de America (grandes aparcamientos).

- Situado en la entreplanta del Edificio

- Superficie neta de 639 m2 y en escritura de 820 m2

- Divisible en 2 oficinas de igual superficie con posible recepción común con entradas y servicios independientes

- Diáfana con 8 ventanales a la calle más ventanales a patio y grandes claraboyas

- Muy luminosa

- Falso techo registrable con luminarias

- Suelos técnicos con preinstalación de voz y datos.

- Plantas dobles e independientes de climatización frio/calor Daikin y sistema de calefacción central adicional.

- Servicios WC duplicados

- Portal con salvaescaleras para minusválidos

Superficie:

  

639 m2

no disponible


Descargar planos en PDF
imprimir ficha
Descargar ficha en PDF
 

Plano de situacion (en Madrid)

 
© NAVESALIA S.L. CIF: B-82685405 Paseo de la Castellana, 54 - Planta 2. 28046 - MADRID. Todos los derechos reservados.